Skip to main content

Mobile offices and construction trailers

Take advantage of a diverse and customizable selection.

We've got what you need

Discover the largest fleet of construction and mobile office trailers in Abitibi-Témiscamingue, available for sale or rent. Whether you need a standard or custom configuration, we meet all your requirements while adhering to current construction standards.

Jobsite trailers (construction trailers)

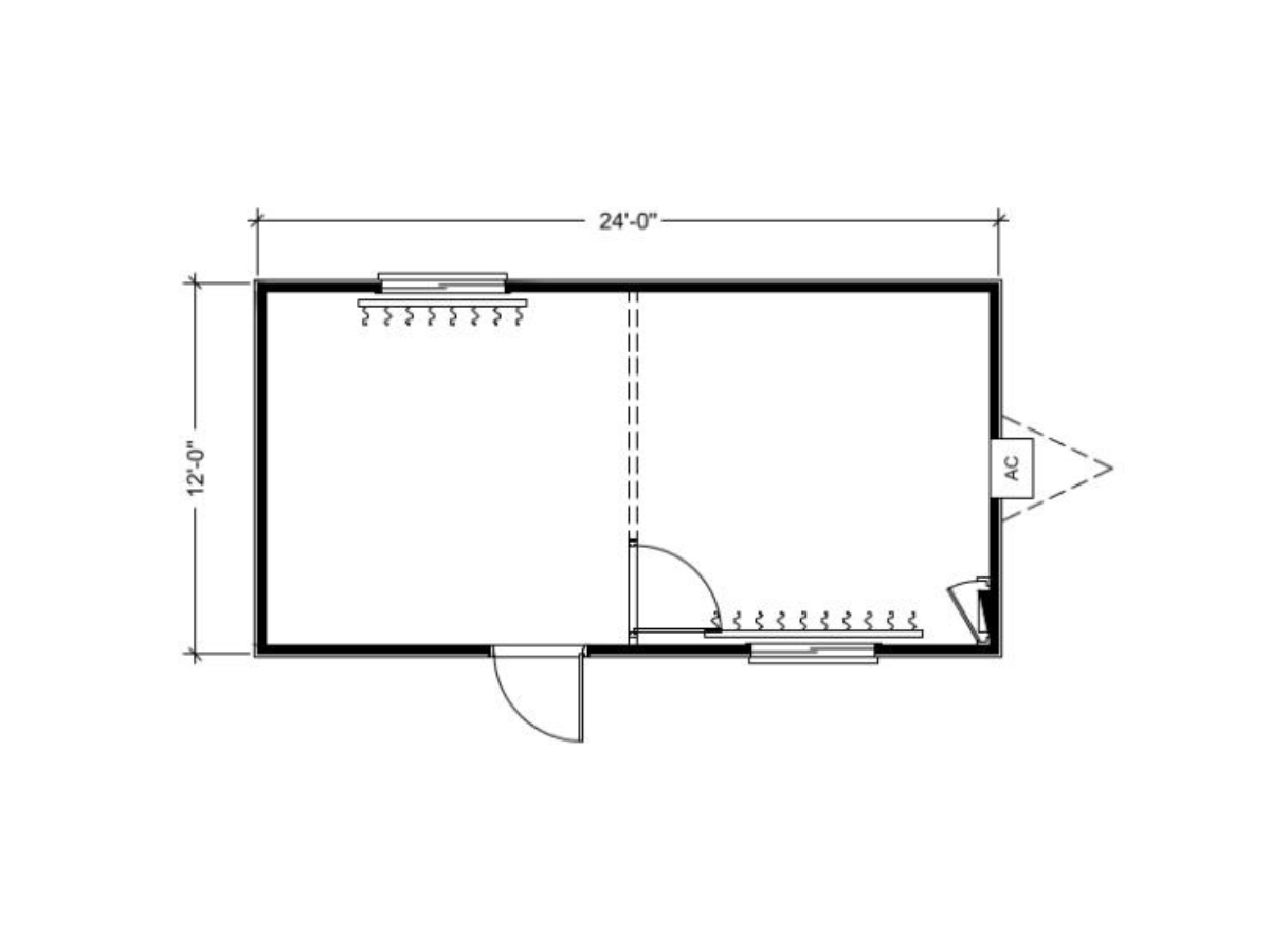
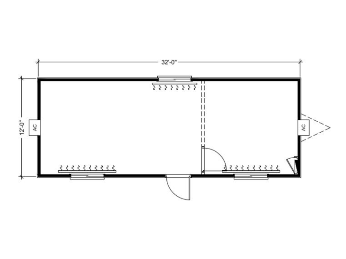
  • These more standard construction trailers offer 1 to 5 divisions based on the trailer size and your needs, providing a wide variety of possible configurations.
  • Possible interior configurations: offices, dining/training rooms, locker rooms, drys, dormitories, bedrooms, guard posts, etc.
  • Available Sizes: 8' X 18', 10' X 20', 10' X 24', 12' X 24', 10' X 32', 12' X 32', 12' X 40', 12' X 52', 12' X 60', and other sizes as needed.

Division configurations based on size

Sanitary trailers

  • These units can accommodate between 1 and 10 toilets and showers. They can be self-contained or not, with the option to divide sections for men and women.
  • Interior configurations: men's restrooms, women's restrooms, shared showers, separate showers, locker rooms, drys, etc.
  • Available sizes: 5' X 6', 8' X 18', 12' X 24', and larger sizes as needed.

Multiple configurations available based on size

Modular trailer sets

For your larger projects, we also offer modular trailer sets tailored to your specific needs.

Available options

Removable interior divisions

For maximum flexibility, our trailers (excluding sanitary units) are equipped with removable interior divisions (1 to 4), offering you a wide range of possible configurations.

Custom furnishing

We cater to your needs by providing suitable furniture, such as refrigerators, microwaves, tables, chairs, desks, whiteboards, televisions, and more. Each trailer can be custom furnished according to your specifications.

Air conditioning and heating

Most of our 40' and larger trailers are equipped with electric central air conditioning and heating systems (5 to 12 kW). For other trailers, we offer electric baseboard heaters and wall-mounted A/C units.

From our yard to your jobsite

With our specialized trucks and trailers, we deliver our mobile offices and construction trailers directly to your jobsite, anywhere in Abitibi-Temiscamingue as well as in other regions.

Want to see some of our configurations?

Our rental catalog showcases some of the configurations we offer.

Our construction trailers in pictures

Discover some examples of construction trailer and mobile office configurations.

Looking to buy a construction trailer?

Contact our team for a trailer tailored to your needs.

Samuel
Guy

Need a construction trailer temporarily?

Speak with our team to rent a trailer that fits your requirements.

Guillaume
Guy